每一個作品,都是私人定制
Every new design is private custom.
Project Details
案例地址丨鑫江合院
項目?積丨180㎡
風格定位丨現代輕奢
設計主創(chuàng)丨王海霞
裝修造價丨25萬
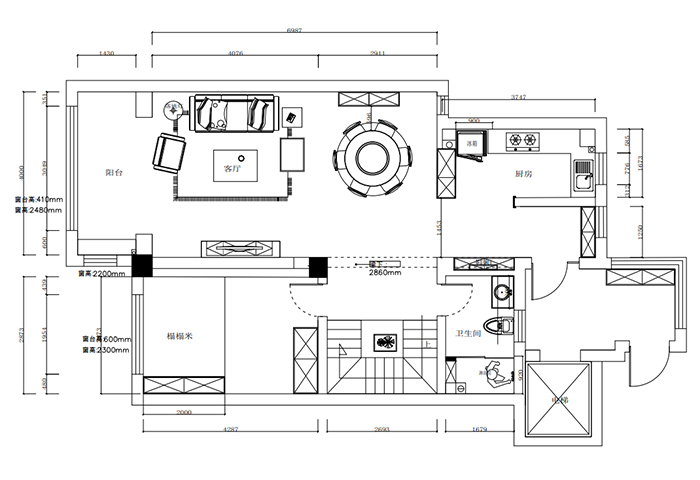
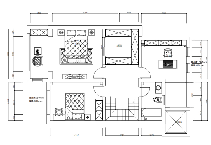
平面戶型圖
鑫江合院180㎡一層戶型平面布局圖
鑫江合院180㎡二層戶型平面布局圖
1、客廳
鑫江合院180㎡輕奢風格裝修實拍圖-客廳
鑫江合院180㎡-輕奢風格裝修實拍圖-客廳
本案為改善型住宅,于細微處提升品質,在尋常煙火中增添幸福感。
根據業(yè)主的需求,設計師以洗練的設計語言、考究的材質選擇、點到為止的色彩運用,讓一切看起來功能齊備,不失現代美感。
全視野落地窗延伸屋內空間格局,空間以灰色定調,搭配石材,從而提升空間品質與格調。
住宅,連接著人們的情感,在物質和精神需求不斷提升的當下,以心筑家,盡享一座城市的精粹,才是人們的生活追求。
鑫江合院180㎡-輕奢風格裝修實拍圖-走廊
2、餐廳
鑫江合院180㎡-輕奢風格裝修實拍圖-餐廳
一蔬一飯,皆是生活。在這里,沒有雜亂的裝飾,有的只是輕盈通透、徜徉流動的自然光影。
鑫江合院180㎡-輕奢風格裝修實拍圖-餐廳
鑫江合院180㎡-輕奢風格裝修實拍圖-餐廳
世間萬千,沒有任何一種美麗永不凋零,唯有對生活的熱情,永不褪色。
餐椅以跳色的形式,點亮整個餐廳空間,交錯盤旋的造型感吊燈、一抹清新的綠植,構建出一個和諧統(tǒng)一的明媚區(qū)域。
3、主臥
鑫江合院180㎡-輕奢風格裝修實拍圖-主臥
晝夜昏晨的斑駁光影,回到獨處的專屬空間,卸下那一身的偽裝,心向自在,優(yōu)雅入眠,歲月的溫柔一如既往。
鑫江合院180㎡-輕奢風格裝修實拍圖-主臥
鑫江合院180㎡-輕奢風格裝修實拍圖-主臥
圖片
4、衣帽間

鑫江合院180㎡-輕奢風格裝修實拍圖-衣帽間
主臥擁有一個衣帽間,滿足業(yè)主日常搭配的需求,也承載了一定的儲物功能。
5、次臥
鑫江合院180㎡-輕奢風格裝修實拍圖-次臥
次臥拋棄了復雜的背景造型和過多的色彩搭配,以灰色為主導,打造最簡潔的舒適休憩環(huán)境。放松每一根神經,時間在這里都變得緩慢。
鑫江合院180㎡-輕奢風格裝修實拍圖-次臥
6、客臥
鑫江合院180㎡-輕奢風格裝修實拍圖-客臥
木質地板提升了整體的溫馨感,素凈的床單,窗簾共同營造了一個寧靜柔和的休息空間。
7、書房

鑫江合院180㎡-輕奢風格裝修實拍圖-書房

鑫江合院180㎡-輕奢風格裝修實拍圖-次臥
書房是主人歸家后進行工作、利用率極高的場所,頂天立地的書柜放置各類專業(yè)書籍,桔色皮質座椅,為空間增添一份活躍的靈感。
8、衛(wèi)生間
鑫江合院180㎡-輕奢風格裝修實拍圖-衛(wèi)生間